
高桿燈高度一般指十五米以上,四十米以下(個別特殊要求也有更高的),光源從幾個到幾十個的大型照明燈具,因此要求高桿燈的基礎必須進行科學設計,必要的時候應進行專項地質勘探,以保證高桿燈安全正常的使用。重點應注意以下的幾個問題
1、高桿燈的安全防護問題,這里主要是指防雷及漏電保護的問題,高桿燈制作之前必須要了解高桿燈安裝位置的地質條件,合理設計防雷擊和漏電接地設施,保證雷擊或者漏電時及時導引電流入地,確保人民群眾的安全。
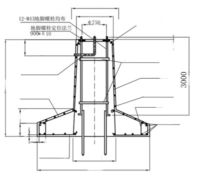
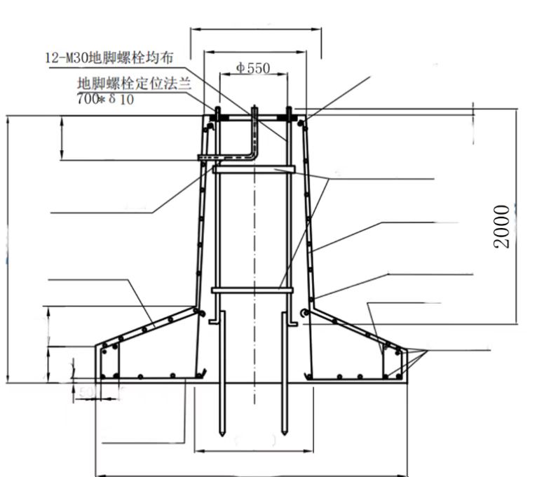
2、高桿燈預埋件問題,高桿燈的預埋件在高桿燈安裝以后是看不見的,他對于高桿燈的抗風及直立有著不可替代的支撐作用,必須根據燈桿高度、最大風力、及地質條件進行科學設計并保證一定的冗余度(安全系數)。


3、高桿燈基礎施工問題。高桿燈 因為施工質量引起的故障主要表現:一,混凝土標號不夠,沒有按標準進行施工;二是過道管的制作和安裝不符合要求,兩端沒有按標準做成嗽叭口;三是鋪裝電纜時在地上拖著走;四是基礎的預埋管不按標準要求施工,主要是預埋管過細,再加上一定的彎度,穿電纜時相當困難,在基礎底部出現“死彎”情況;五是線鼻子壓接和絕緣包纏厚度不夠,經過長時間運行就會相間短路。

